Render aéreo edificio

diseño edificio puerto gaitan

diseño edificio puerto gaitan

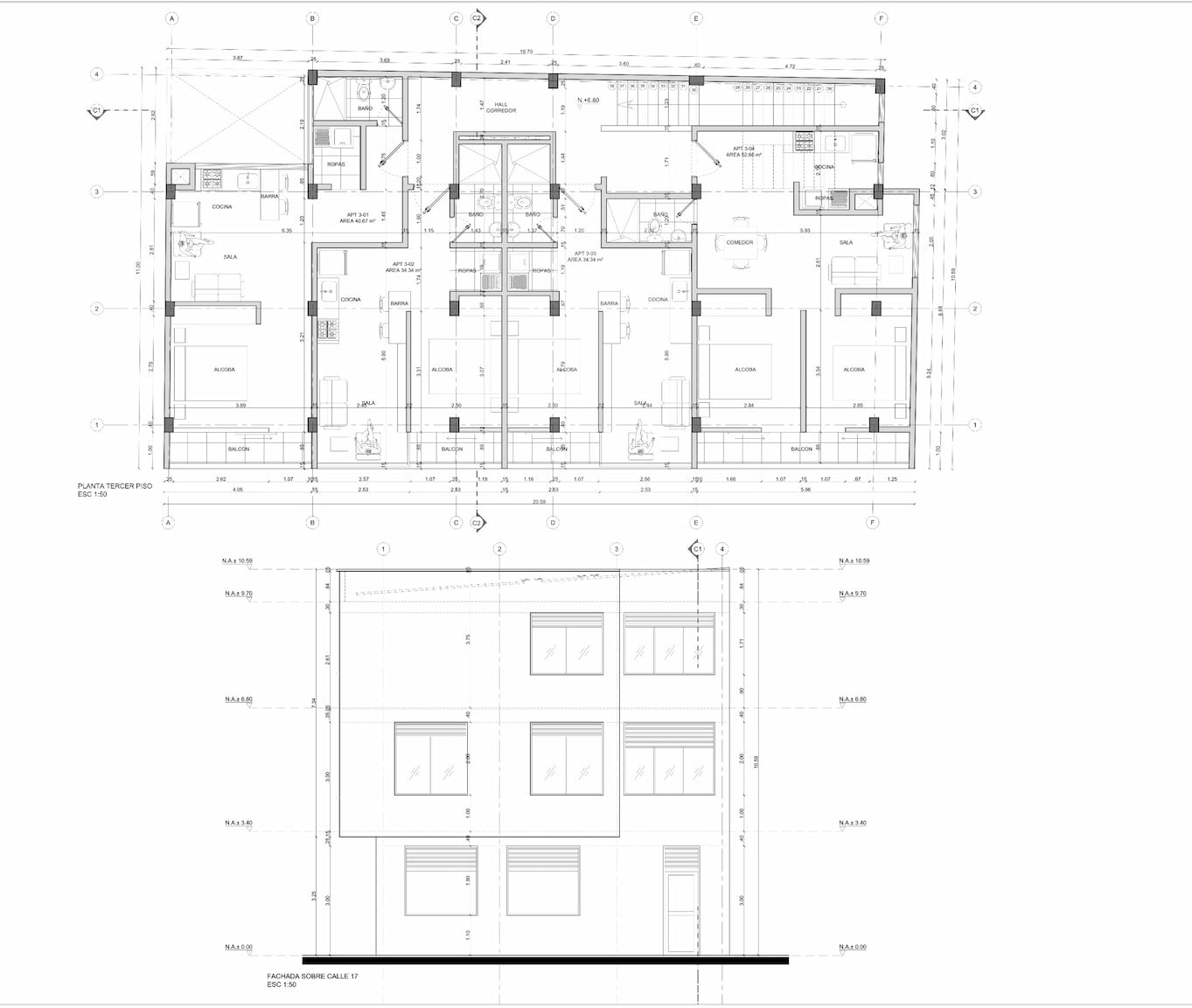
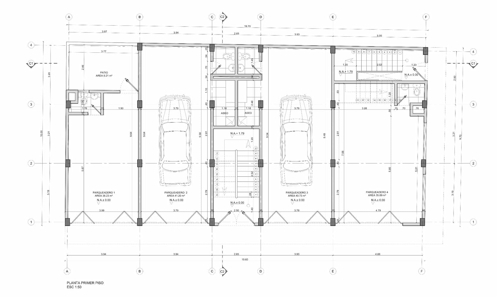
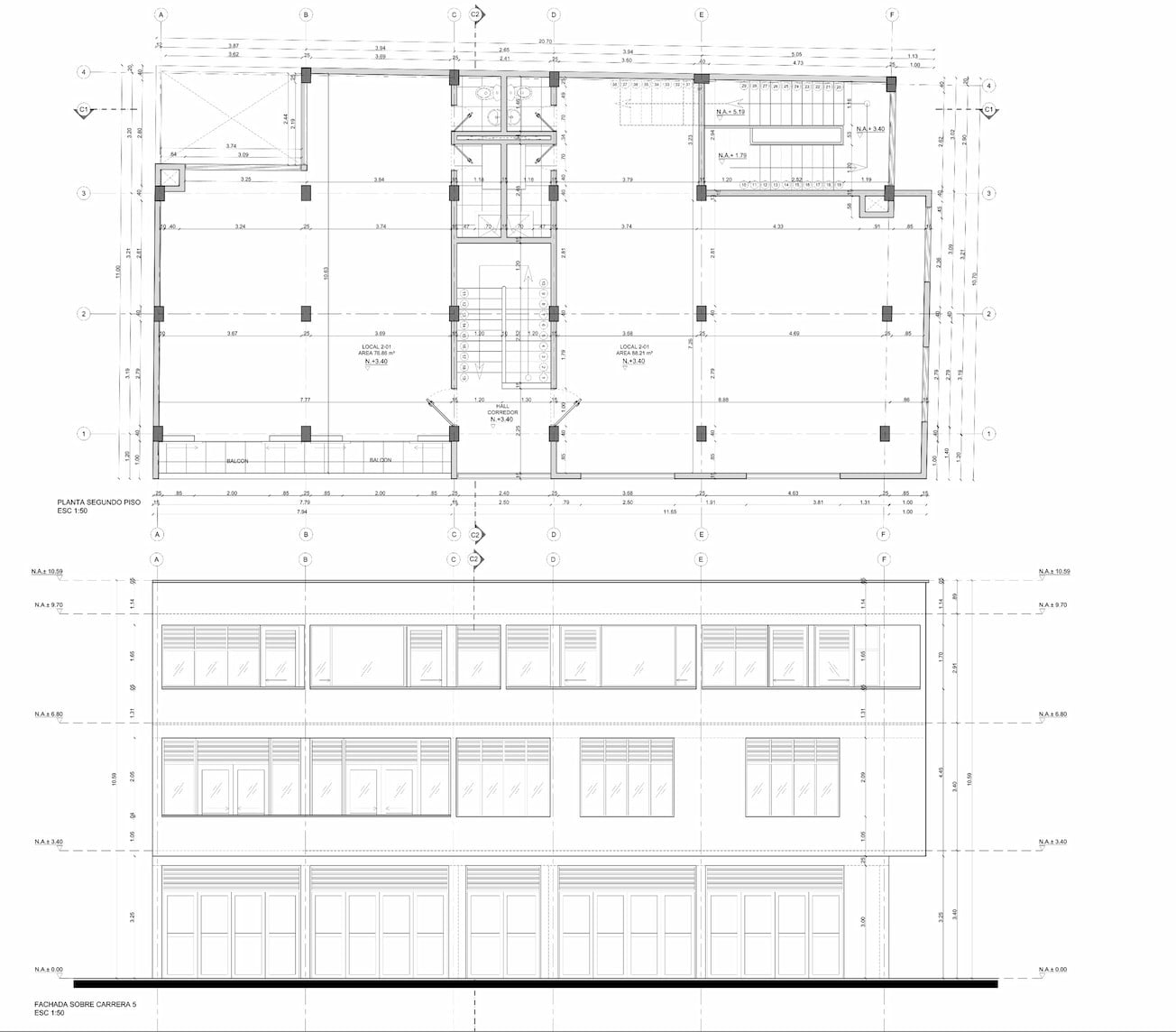
LUGAR DE EJECUCIÓN: PUERTO GAITAN – META

ÁREA ARQUITECTÓNICA: 588 m2

OBJETO DEL PROYECTO: Consultoría para la elaboración de los estudios, diseños y presupuesto, para edificio de vivienda multifamiliar y comercio, ubicado en el municipio de Puerto Gaitán – Departamento del Meta.

Se Realizaron todos los estudios y diseños tales como: Diseño Arquitectónico, Iluminación, Eléctrico y Presupuesto.

Publicaciones Similares